Newmarket
Newmarket
Effortless Style, Spacious Design & Exceptional Value
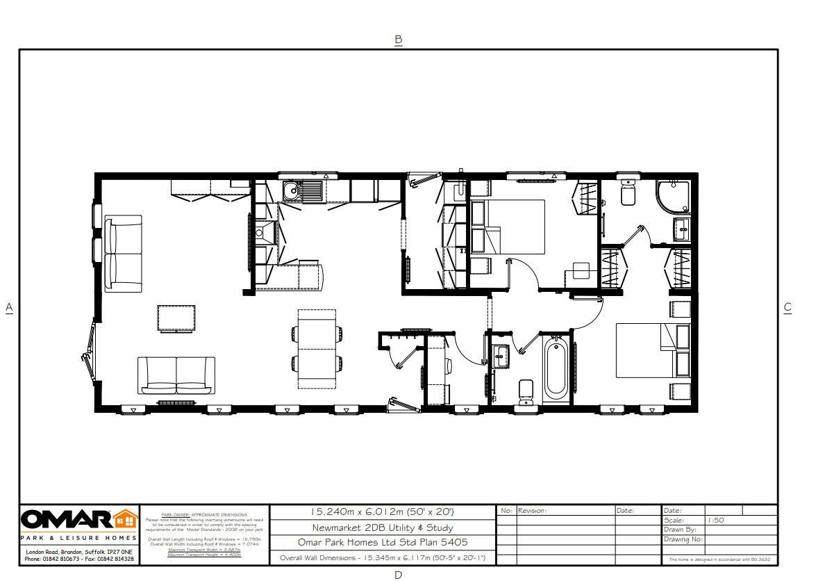
Discover the perfect blend of modern style and everyday practicality with Newmarket. Available as a single or twin unit, this elegant park home is ideal for those who value bright, open spaces and versatile living. From the moment you step inside, you'll notice the carefully considered layout, natural light and contemporary finishes that make the Newmarket feel instantly like home.
Key Features
- Available as single or twin unit
- Stylish semi open-plan living space
- French doors leading to potential patio or terrace
- Spacious ‘L’-shaped lounge and dining area
- Modern kitchen with open access to dining
- Family bathroom with clean modern finishes
Design & Layout
The Newmarket’s semi open-plan living area gives a true feeling of space while maintaining distinct zones for cooking, dining, and relaxing. Tall front windows and French doors allow light to flood in, offering a beautiful outlook and easy access to your outdoor space.
Why Choose Newmarket?
Newmarket combines smart design, elegant touches and practical layouts, making it one of the most versatile homes in the EKOS collection. Whether you're entertaining guests or enjoying a peaceful morning, this home offers the perfect backdrop for your lifestyle.
















Floor Plan Options
3D Virtual Tour
You May Also Like
Start Planning Your Move
Call Us Today
Ready to learn more?
Call us today!
01953 450045
Send An Enquiry
Start a conversation with us today,
click below to begin
Enquire Now




